Tarnowo Podgórne (gw), Lusówko

Dom na sprzedaż

Opis nieruchomości

NEXT Nieruchomości poleca na sprzedaż dom jednorodzinny dwulokalowy w Lusówku ( gmina Tarnowo Podgórne ) przy ulicy Przystaniowej. Pełne uzbrojenie, szybki dojazd do centrum Tarnowa Podgórnego.

W pobliżu szkoła, przedszkole, sklepy oraz Jezioro Lusowskie. 

W galerii aktualne zdjęcia z postępu prac budowlanych!

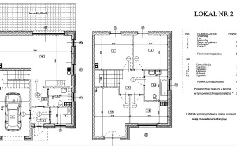
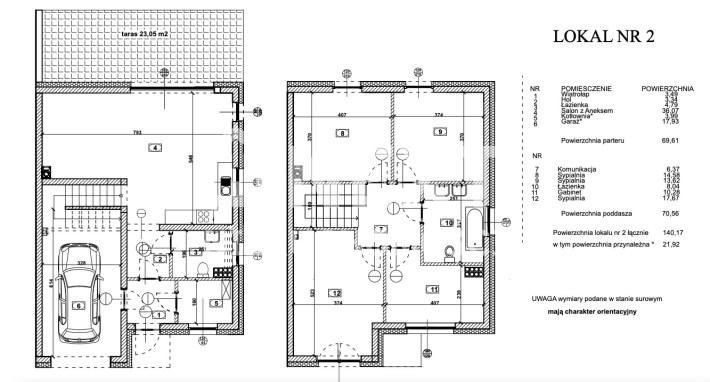
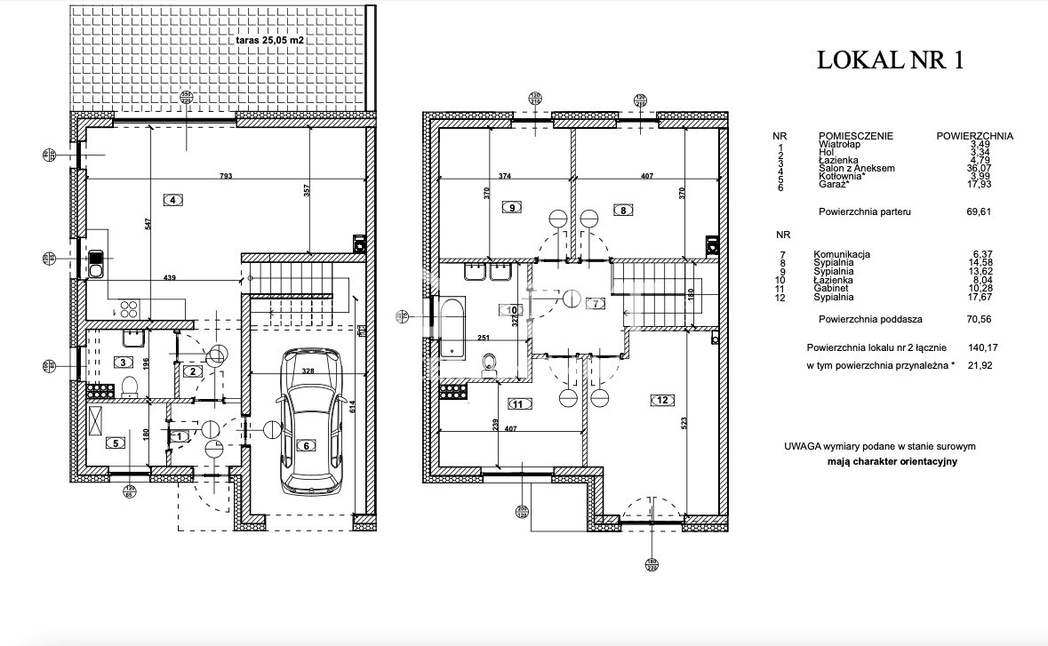
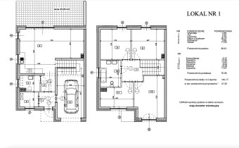
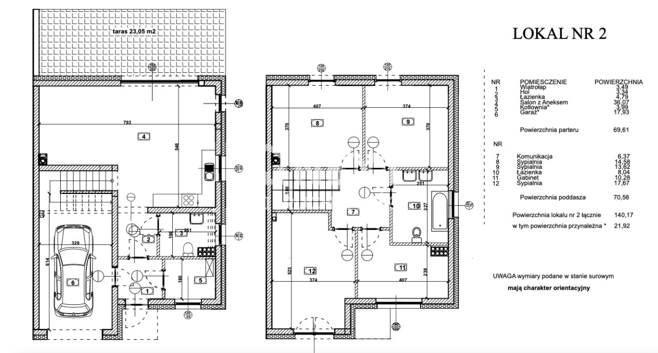
Powierzchnia każdego lokalu to 140,17 m2 + strych około 40m2. Powierzchnia działki 1005 m2.

Rozkład pomieszczeń: 

Parter: wiatrołap, hol, łazienka, pokój dzienny z aneksem kuchennym, kotłownia oraz garaż.

Piętro: łazienka, komunikacja oraz 4 sypialnie. Możliwość zaadoptowania jednej sypialni jako gabinet/biuro.

Przemyślany i nowoczesny projekt w pełni dostosowany do potrzeb dużej rodziny.

Brak skosów na piętrze. Przestronne oraz ustawne sypialnie. 2 komfortowe łazienki.

Powierzchnia działki do lokalu 503 m2.

Możliwość zawarcia umowy deweloperskiej oraz przygotowania zmian pod klienta na każdym etapie budowy. Rachunek powierniczy w cenie lokalu.

Bogaty standard budowlany:

- Ściany nośne porotherm 24cm,

- Ściana po między lokalami z cegły ceramicznej akustycznej,

- Dachówka Creaton 30 lat gwarancji,

- Budynek ocieplony styropianem o grubości 20 cm,

- Ocieplenie podłogi 15 cm,

- Stolarka okienna KRISPOL, 3 szybowe.

- Rolety zewnętrzne elektryczne w każdym oknie,

- W salonie okno w systemie HST w cenie lokalu,


- Brama garażowa segmentowa z napędem elektrycznym na pilota,

- Kocioł gazowy kondensacyjny 2 funkcyjny,

- Ogrzewanie podłogowe na parterze oraz na piętrze..

W salonie wkład kominowy ceramiczny z możliwością podłączenia kominka,

- Front budynku w pełni wybrukowany oraz opaska wokół budynku,

- Taras za budynkiem wyłożony kostką brukową,

- Ogrodzenie działki bez frontu,

- Dodatkowo w budynku system instalacji alarmowej, kable antenowe oraz internetowe w każdej sypialni.

- Wyjście pod ładowarkę samochodową w cenie lokalu.

- Utwardzona droga.

- Możliwość dostosowania rozkładu instalacji wewnętrznych pod wskazanie klienta!

Pełne uzbrojenie: Prąd, woda, gaz oraz kanalizacja.


Aktualność postępu budowy: Zakończono prace nad stropem nad parterem.

Odbiór: I kwartału 2027 roku.

Inwestorem jest spółka Logos Developer, firma z dużym doświadczeniem, świadcząca kompleksowe usługi w budownictwie jednorodzinnym.
Spółka realizuje inwestycje na sprzedaż oraz projekty indywidualne pod klienta. Zachęcam do zapoznania się z dotychczasowymi realizacjami na stronie internetowej developera: w w w . l o g o s d o m . p l


Rozważasz zakup tej nieruchomości? Pomożemy sprzedać Twoją obecną nieruchomość i połączyć te transakcję!

Cena: 869000 złotych brutto.

Zapewniamy darmową obsługę w zakresie finansowania zakupu naszych nieruchomości.

Zapraszamy do kontaktu!

Kontakt:

Rafał Nowak

Tel. 669-088-199

NEXT Nieruchomości
Ul. Meissnera 2/U2
60-408 Poznań

Nota prawna

Opis oferty zawarty na stronie internetowej sporządzany jest na podstawie oględzin nieruchomości oraz informacji uzyskanych od właściciela, może podlegać aktualizacji i nie stanowi oferty określonej w art. 66 i następnych K.C.

Szczegóły oferty

Symbol oferty NXT-DS-567
Powierzchnia 140,17 m²
Powierzchnia użytkowa 140,17 m²
Powierzchnia działki 1 005 m²
Powierzchnia balkonów/tarasów 25,00 m²
Liczba pokoi 5
Rodzaj domu dwurodzinny
Technologia budowlana cegła ceramiczna
Standard
Liczba pięter w budynku 2
Wymiary działki 29,60 x 33,91 m
Garaż w bryle
Okna PCV
Instalacje nowe
Liczba tarasów 1
Zagosp. działki niezagospodarowana
Ukształtowanie działki płaska
Kształt działki prostokąt
Pokrycie dachu dachówka ceramiczna
Stan budynku do wykończenia
Ogrodzenie działki częściowo ogrodzona
Tarasy taras duży

Lokalizacja

Kalkulator kredytowy

PLN
%
Wysokość raty

Kalkulator kosztów

PLN
PLN
PLN
PLN
PLN
PLN
%
PLN
Podatek od czynności cywilno-prawnych
Taksa notarialna (opłata notarialna)
VAT od taksy notarialnej (opłaty notarialnej)
Wniosek do WKW
VAT od wniosku do WKW
Prowizja agencji nieruchomości
VAT od prowizji agencji nieruchomości
Wypisy aktu notarialnego - około
RAZEM (cena + opłaty)

Podobne oferty

bez prowizji
dom na sprzedaż - Tarnowo Podgórne (gw), Tarnowo Podgórne

dom na sprzedaż

Tarnowo Podgórne (gw), Tarnowo Podgórne
5 pokoi 141,16 m2 6 722,87 zł/m2
nowa oferta
dom na sprzedaż - Tarnowo Podgórne (gw), Góra

dom na sprzedaż

Tarnowo Podgórne (gw), Góra
5 pokoi 122,21 m2 7 110,71 zł/m2
nowa oferta
dom na sprzedaż - Tarnowo Podgórne (gw), Tarnowo Podgórne

dom na sprzedaż

Tarnowo Podgórne (gw), Tarnowo Podgórne
5 pokoi 122,21 m2 7 110,71 zł/m2

Napisz do nas

Proszę wypełnić to pole
Proszę wypełnić to pole
Proszę wypełnić to pole
Proszę wypełnić to pole
Trwa wysyłanie...

Ta strona wykorzystuje pliki cookies w celach statystycznych oraz w celu dostosowania naszych serwisów do indywidualnych potrzeb klientów. Zmiany ustawień dotyczących plików cookie można dokonać w dowolnej chwili modyfikując ustawienia przeglądarki. Korzystanie z tej strony bez zmian ustawień dotyczących cookies oznacza, że będą one zapisane w pamięci urządzenia.

rozumiem